Sanierungsbdürftiges Mehrfamilienhaus mit Charm und Geschichte :-)
-
Historisches Mehrgenerationenhaus mit Entwicklungspotenzial Schnitterkaserne in Düssin aus dem Jahre 1920
in Ludwigslust (Landkreis Parchim / Brahlstorf )
In absolut idyllischer Sackgassenrandlage mit freiem Blick über weite Felder wartet dieses geschichtsträchtige Anwesen – die ehemalige Schnitterkaserne aus dem Jahr 1920 (Thyssen-Bauweise) – auf neue Eigentümer mit Ideen und Visionen.
Ob als Mehrgenerationenhaus, Wohnprojekt oder Investitionsobjekt:
Dieses charmante Ensemble bietet viele Möglichkeiten.
Eckdaten zum Objekt:
Grundstücksgröße: ca. 3.817 m²
Wohnfläche: ca. 470 qm²
Massivbauweise, sanierungsbedürftig
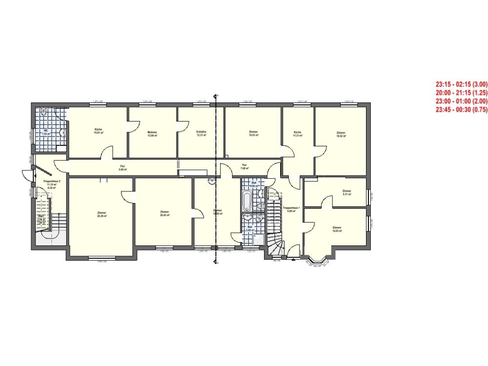
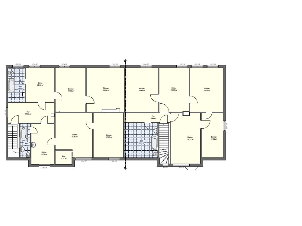
16 Zimmer- Anzahl mögliche Wohneinheiten: 6 – 8
Etagen: 2 + ausbaufähiger Dachstuhl von 200 qm
Zwei separate Eingänge, zwei Treppenaufgänge
Trockener Teilkeller
Ofenheizung, 5 Schornsteine, davon 2 saniert & funktionstüchtig
Dachstuhl in einen gutem Zustand
Weitblick über Felder, alter Baumbestand
Nebengebäude & Nutzungspotenzial:
Zwei Garagengebäude
Ein separates Stallgebäude
Eine weitere Garage
Ein massiv gebautes Schuppengebäude aus Stein
Besonderheiten:
Historisches Gebäude mit Charme & Geschichte
kein Denkmalschutz
Ideal für ein Mehrgenerationenhaus oder für gemeinschaftliche Wohnformen, vielfältige Nutzungsmöglichkeiten durch Größe und Aufteilung.
Dieses außergewöhnliche Anwesen bietet eine seltene Gelegenheit, ein Stück Geschichte mit neuem Leben zu füllen. Die Kombination aus großem Grundstück, historischem Charme und Entwicklungsspielraum macht die Schnitterkaserne in Düssin zu einem idealen Projekt für Menschen mit Vision und Herz für historische Gebäude. -
Flächen
- Wohnfläche: 470 m²
- Grundstücksfläche: 3.817 m²
- Zimmer insgesamt: 16
Zustand & Erschließung
- Baujahr: 1920
-
- Baujahr (Energieausweis): 1920
-
Düssin befindet sich innerhalb des Naturparks Mecklenburgisches Elbetal im Bereich Amt Boizenburg Land und besitzt einen Haltepunkt für Nahverkehrszüge an der Bahnstrecke Hamburg–Berlin. Die Gemeinde ist landwirtschaftlich geprägt. Neben der Viehzucht ist besonders der Spargelanbau verbreitet. Vellahn liegt an der B 5 zwischen Boizenburg und Pritzier.
Vellahn 5 min
Wittenburg A 24 20 min
Ostsee / Boltenhagen 90 min
Boizenburg 20 min
Hamburg HBH 70 min
HH Bergedorf 50 min
Ludwigslust 30 min
Schwerin 50 minFür Pendeler ist es Interessant, da in Brahlstorf ein Bahnsteig für die Strecke Hamburg – Berlin ist.
Vellahn ist ein größeres Dorf und bietet eine fantastische Infrastruktur. Schule, Kindergarten, Ärzte, Schlachter, Becker, Restaurant, Tankstelle und ein Lebensmitteldiscounter sind vorhanden.
Es sind auch viele Freizeitaktivitäten sind möglich, wie z.B. Motorsportclub, Vellahner Sportverein (Fußball/ Handball), Angelverein Gut Fang Vellahn e.V., Vellahner Karneval Club.
-
- Kaufpreis: 135.000 €
- Käuferprovision: 3,25 % inkl MwSt
Grundrisse





































