Wohnimmobilie > Haus
Zu Verkaufen
Mittelreihenhaus in guter Lage :-)
365.000 €
MV 5969
1955
80 m²
217 m²
4
-
Charmantes Mittelreihenhaus mit Kamin, Terrasse und Einbauküche – Ihr neues Zuhause wartet!
Zum Verkauf steht ein gepflegtes Mittelreihenhaus mit einer Wohnfläche von ca. 80 m² auf einem 217 m² großen Grundstück. Das Haus bietet 4 Zimmer und überzeugt durch eine durchdachte Raumaufteilung sowie zahlreiche gemütliche Extras. Im Erdgeschoss erwartet Sie ein heller Wohnbereich mit Kamin, der an kühlen Tagen für wohlige Wärme sorgt. Von hier aus gelangen Sie direkt auf die Terrasse und in den liebevoll angelegten Garten – ideal zum Entspannen oder für gesellige Abende im Freien. Die moderne Einbauküche ist im Kaufpreis enthalten und bietet alles, was das Herz begehrt. Das Badezimmer ist funktional gestaltet und gepflegt.
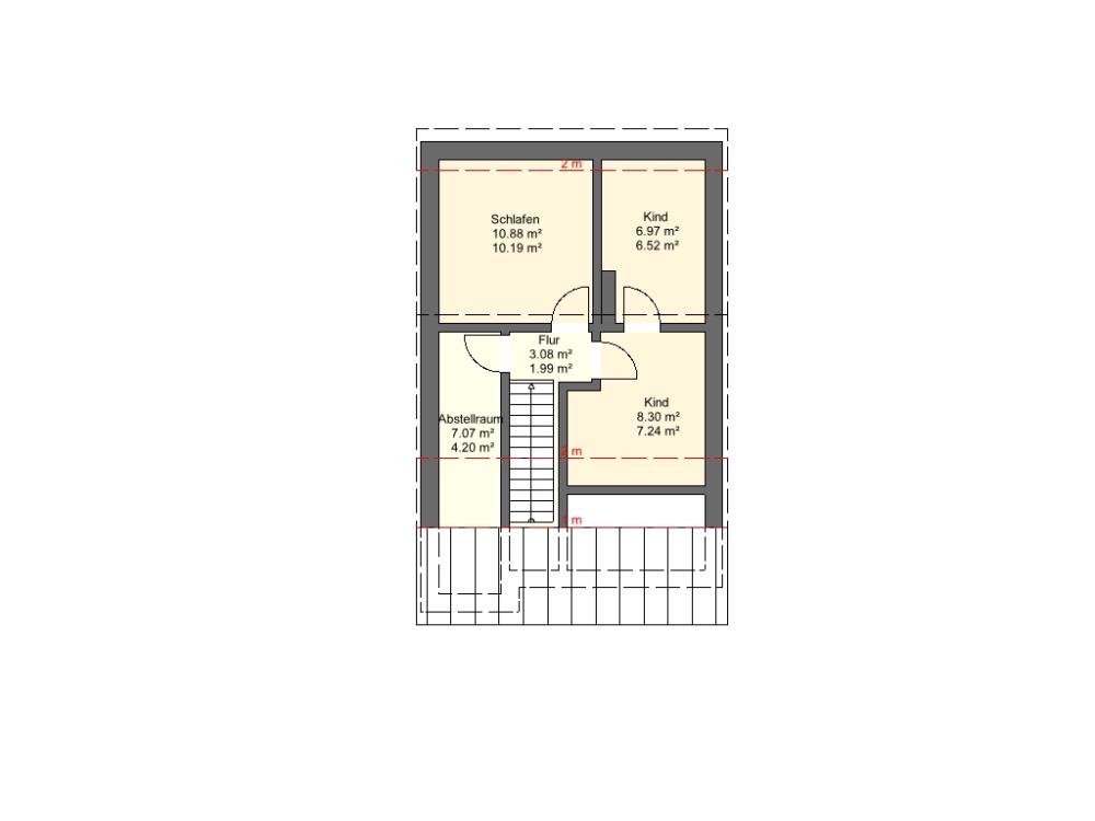
Im Obergeschoss befinden sich die Schlafzimmer, darunter ein Raum mit begehbarem Kleiderschrank, der zusätzlichen Komfort bietet.
Ein besonderes Highlight auf dem Grundstück ist der praktische Schuppen mit Stromanschluss, der zusätzlichen Stauraum oder Platz für Hobbys bietet.
Das Haus befindet sich in ruhiger und familienfreundlicher Lage – perfekt für Paare oder kleine Familien, die ein gemütliches Zuhause mit Garten suchen.
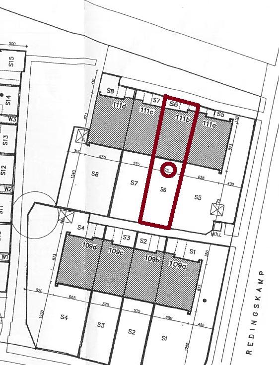
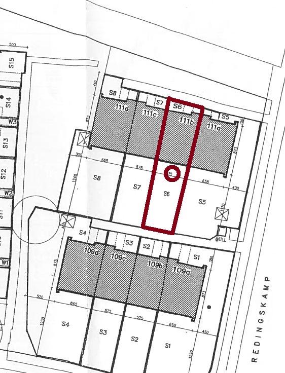
Das Gesamtgrundstück ist nach WEG geteilt, 288/ 10000 Teil wird erworben. -
Flächen
- Wohnfläche: 80 m²
- Grundstücksfläche: 217 m²
- Zimmer insgesamt: 4
Zustand & Erschließung
- Baujahr: 1955
-
- Befeuerung: Gas
-
- Baujahr (Energieausweis): 1955
- Primärenergieträger: Gas
-
Hamburg/ Eidelstedt- Nähe zur Innenstadt, gute Verkehrsverbindungen (z. B. Schnellbahn, Bus, Autobahn) Dienstleister, Supermärkte, Apotheken und Schulen sind in der näheren Umgebung vorhanden. Sehr attraktiv – insbesondere für Menschen, die eine Mischung aus Stadtanbindung und ruhigerem Wohnumfeld suchen.
-
- Kaufpreis: 365.000 €
- Käuferprovision: 3,25 % inkl MwSt
Grundrisse



































