Wohnimmobilie > Haus
Zu Verkaufen
Energieeffizient, pure Natur, Sackgassenlage, 6 Zimmer, Wärmepumpe, große PV-Anlage und noch eine Doppelgarage :-) PROVISIONSFREI
429.000 €
MV 5894
2003
258 m²
1.001 m²
6
-
Wir verkaufen ein energieeffizientes 6-Zimmer-Haus in der Nähe von Boizenburg in Kuhlenfeld. Es handelt sich hier um ein Niedrigenergiehaus, welches 2003 in massiver Bauweise errichtet wurde. Bei der Materialauswahl wurde explizit auf gehobenen Standard geachtet. Mit viel Liebe zum Detail ist hier eine richtige Wohlfühloase entstanden.
Das Haus verfügt über eine Photovoltaikanlage mit Lithium-Stromspeicher. Hier kann noch bis 2036 mit einer Einspeisevergütung von 12 Cent je Watt gerechnet werden. Weiterhin wurde 2024 eine 7,7 KW Wärmepumpe mit Puffer- und Brauchwasserspeicher eingebaut. Das Haus hat laut Energieausweis einen Bedarf von 26 kwh. Erfahrungsgemäß sind die Nebenkosten sehr gering. Ebenfalls gibt es eine Alarmanlage mit Bewegungsmeldern und Türkontakten. Der Glasfaseranschluss von der Wemacom ist bereits im Haus vorhanden. Ebenfalls ist eine Klimaanlage mit einer Außeneinheit und vier Inneneinheiten verbaut.
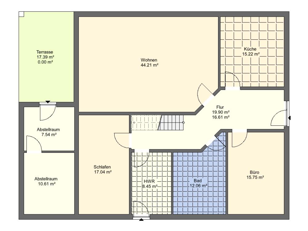
Im Erdgeschoss befinden sich die Küche (mit hochwertiger Küchenzeile inkl. aller E-Geräte, Granitarbeitsplatte), das große Wohn- und Esszimmer, ein großes Bad mit Dusche und Wanne, zwei Zimmer (Büro, Schlafzimmer ect., eines davon ist klimatisiert), ein Hauswirtschaftsraum sowie der Treppenflur. Über die Treppe im Flur gelangt man in das Obergeschoss, wo sich ein großes Bad und drei weitere Zimmer (klimatisiert) befinden. Eines der Zimmer verfügt über einen begehbaren Kleiderschrank.
Vom Wohnzimmer gelangt man auf die große Terrasse. Hier gibt es nochmal einen Abstell- bzw. Hauswirtschaftsraum. Weiterhin gibt es eine große Garage für zwei PKW’s sowie zwei Abstellräume und einen Dachboden.
Das Grundstück hat eine Größe von 1.001 m². Es ist komplett angelegt und begrünt sowie mit Spielgeräten für Kinder ausgestattet.
Das Haus liegt für Familien ruhig in einer Sackgasse, mitten in der Natur. Kindergärten und Schulen sind in der unmittelbaren Umgebung (Boizenburg und Vellahn) zu finden. Im Dorf leben viele Familie mit Kindern. Desweiteren zählt die Region zur Metropolregion Hamburg. Eine gute Bahn- und Autobahnanbindung ist gegeben.
Es fällt keine Provision an. -
Flächen
- Wohnfläche: 258 m²
- Grundstücksfläche: 1.001 m²
- Zimmer insgesamt: 6
Zustand & Erschließung
- Baujahr: 2003
- Zustand: gepflegt
-
- Baujahr (Energieausweis): 2003
-
Kuhlenfeld liegt in der Nähe von Boizenburg. Das beschauliche Dorf liegt in traumhafter Natur.
In Boizenburg finden Sie alle Dinge für den täglichen Bedarf, wie z.B. Tankstellen, Einkaufszentren, Ärzte, Apotheken, Kindergärten, Schulen und ein Krankenhaus. Durch die zentrale Lage, erreichen Sie Hamburg oder Schwerin über die naheliegende Autobahn A 24 oder über die am Bahnhof liegende Zugverbindung, in kürzester Zeit. -
- Kaufpreis: 429.000 €
Grundrisse

































