Ein- Zweifamilienhaus mit Vollkeller und Doppelgarage in ruhiger Lage :-)

-
Dieses charmante Objekt besticht durch seinen schönen Baustil und bietet auf einem großzügigen Grundstück vielfältige Möglichkeiten. Die Immobilie ist ideal für Liebhaber von Potenzial und Raum für kreative Sanierungen. Im Untergeschoss befindet sich ein gut nutzbarer Vollkeller, der zusätzlichen Stauraum oder Hobbyflächen schafft. Die Doppelgarage sowie weitere Nebennutzungen wie Schuppen bieten zusätzlichen Stauraum und Komfort rund um das Haus.
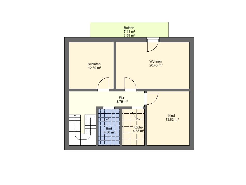
Die Raumaufteilung überzeugt durch eine klare, gut durchdachte Anordnung, die gute Nutzungsmöglichkeiten als Familie, Wohnen und Arbeiten vereint. Von dem Balkon aus genießen Sie einen ruhigen Blick auf das Grundstück.
Insgesamt bietet das Anwesen viel Potenzial und lässt es sich nach individuellen Wünschen gestalten und zu einem einzigartigen Zuhause entwickeln. 🙂 -
Flächen
- Wohnfläche: 132 m²
- Grundstücksfläche: 1.454 m²
- Zimmer insgesamt: 6
Zustand & Erschließung
- Baujahr: 1967
-
- Heizungsart: Zentralheizung
- Befeuerung: Öl
-
- Baujahr (Energieausweis): 1967
- Primärenergieträger: Öl
-
Barendorf liegt im südöstlichen Umland von Hamburg in der Metropolregion Hamburg.
Es gibt eine gute Erreichbarkeit über Bundes- oder Landesstraßen, sowie direkte Anbindung an regionale Bahnen/Buslinien, mit Verbindungen in die Hamburger Innenstadt und in umliegende Städte.
Einkaufsmöglichkeiten, Ärzte, Apotheken, Banken und Schulen in der näheren Umgebung; reichhaltiges Freizeit- und Kulturangebot in der Region.
Ländliche Ruhe kombiniert mit naher urbaner Anbindung, familienfreundliche Umgebung, Grünflächen und Naturräume in der Umgebung
Ruhiges, wohnorientiertes Umfeld, gepflegte Gegebenheiten, sichere Umgebung, Blick auf Grünflächen oder typische Ortsstruktur.
Einkaufs- und Versorgungsnähe: Supermarkt, Bäcker, Apotheke in kurzer Distanz; regelmäßige Wochenmärkte oder lokale Einkaufsmöglichkeiten in Barendorf bzw. unmittelbarer Umgebung.
Schulen und Kitas: Kindergarten und Grundschule in moderater Entfernung -
- Kaufpreis: 285.000 €
- Käuferprovision: 3,25 %inkl MwSt
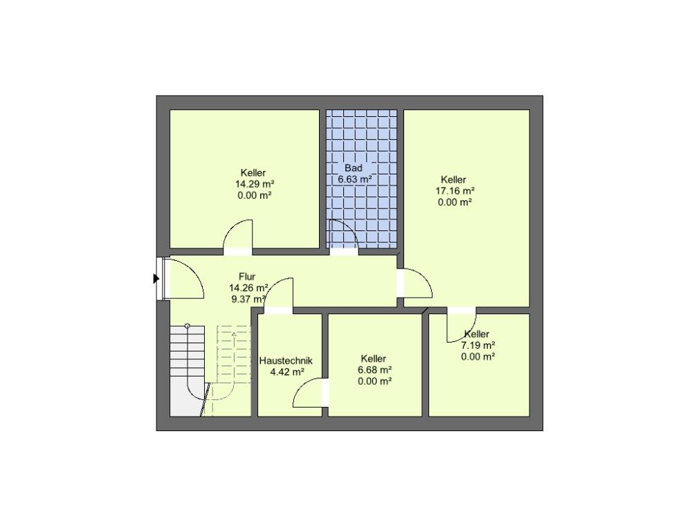
Grundrisse
