Wohnimmobilie > Haus
Zu Verkaufen

12 WE Neubau für Kapitalanleger in familienfreundlicher Lage :-)

19258 Gresse
1.988.000 €

MV 5977 3
2027
926 m²
2.908 m²
36
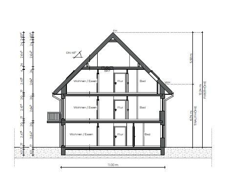
  • Dieses moderne Neubauprojekt mit insgesamt 12 hochwertig gestalteten Wohnungen ( 2x 6 WE ) wird in Gresse realisiert. Das Objekt hat eine Soll-Kaltmiete von insgesamt 122.284,80 € ( 11€/qm WF ) pro Jahr.
    Das Mehrfamilienhaus fügt sich harmonisch in die urbane Umgebung ein und umfasst zwei Vollgeschosse sowie ein Dachgeschoss. Die angebotenen Einheiten verfügen über zeitgemäße 3-Zimmer-Grundrisse mit Wohnflächen von ca. 69 m² bis ca. 84 m² und überzeugen durch eine moderne Architektur. Das Haus bietet mit seiner urbanen Lage, der modernen Ausstattung und den durchdachten Wohnungsgrößen eine hervorragende Grundlage für nachhaltige Wertentwicklung.
    Alle Wohnungen sind komfortabel über Treppenhaus erreichbar.
    Die Grundrisse der Wohnungen können noch angepasst werden um eine KfW 55 KNN Förderung zu erhalten.
    Beheizt wird es mit einer Luft Wasserwärmepumpe. Alle Wohnungen sind mit Dreifachverglasung und einer Fußbodenheizung ausgestattet.

    Im Preis enthalten ist das schlüsselfertige Haus ( ohne Fliesen, Maler und Bodenbeläge ) und das Baugrundstück.

    Für alle weiteren Kosten wie Abriss, Rodung, Küchen, Außenanlagen, Erschließung und Nebenkosten sollten Sie bitte ca. 300.000€ planen.

    Wir stehen gerne für ein persönliches Gespräch bereit, um weitere Detail zu klären. 😊
  • Flächen

    • Wohnfläche: 926,4 m²
    • Grundstücksfläche: 2.908 m²
    • Zimmer insgesamt: 36

    Zustand & Erschließung

    • Baujahr: 2027
    • Baujahr (Energieausweis): 2027
  • Gresse liegt an der Bundesstraße 195 zwischen den Städten Zarrentin am Schaalsee und Boizenburg. Durch das Gemeindegebiet fließt die Boize in Richtung Sude. Im Ort befindet sich ein Ärztehaus, ein Kindergarten mit Hort, eine Grundschule und ein Lebensmittelladen.

    Boizenburg 8 km
    Zarrentin / Schallsee 23 km
    A 24 20 km
    Lüneburg 40 km
    Hamburg 60 km

    • Kaufpreis: 1.988.000 €
    • Soll-Mieteinnahmen: 122.280 €

Dein Ansprechpartner bei uns

Michael Volkmer

038847/54772
0172/3169936
Sicher!